Projeyi Paylaş
Teknik Detaylar
| Yapı Tipi | Çelik Villa |
| Bina Karkas Sistemi | Galvanizli hafif çelik (14cm, 9cm) |
| Çatı Aksamı | Sandviç Panel |
| Dış Duvar Aksamı | Fibercement ve dekoratif cephe kaplama |
| İç Duvar Aksamı | Alçıpan, kaba alçı, saten alçı sıva, boya ve dekoratif stropiyer |
| Duvar ve Çatı İzolasyonu | Uygun yoğunluklu taşyünü izolasyon |
| Tavan Kaplama | Alçıpan, kaba alçı, saten alçı sıva ve boya |
| Banyo/Tuvalet Tavanı | Suya ve neme dayanıklı alçıpan |
| Pencereler | Pvc doğrama, çift cam (4/12/4) |
| İç Kapı | Lake kapı |
| Dış Kapı | 1. Sınıf Çelik Kapı |
| Elektrik Tesisatı | 3×2,5-2×1,5 antigron sıva altı, TV-TLF kablosu |
| Su tesisatı | Çift su tesisatı (Sıcak/Soğuk) |
| Vitrifiye Grubu | Klozet, lavabo dolabı, duşakabin |
| Zemin Kaplaması | Laminat parke |
| Islak Hacimler | 1. Kalite Seramik |
| Mutfak Mobilyası | MDF lam malzemeden 6 mtul alt, 6 mtul üst dolap, ada ve akrilik tezgah |
- Subasman, şap betonu, bahçe duvarı, peyzaj, yüzme havuzu ve altyapı fiyata dahil değildir. Nakliye ve montaj alanında gerekli elektrik temini, ilgili kurumlardan alınacak izin ve onaylar, bina harici dış bağlantılar alıcıya aittir.
- Detaylı bilgi almak için bizimle iletişime geçin.
Özellikler
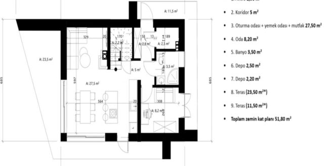
| Türkiye | |
| 160 m² | |
| 4+1 | |
| Lütfen iletişime geçiniz. | |
| Çelik Villa, Üçgen Ev, |